Default £895,000

Calculate your mortgage repayments

4 bedroom Semi-detached house for sale

Eccleston Road, London

  • Semi-detached house
  • 4 bed
  • 1 bath
  • 2 reception

Key Features

  • TWO RECEPTION ROOMS
  • FOUR BEDROOMS
  • FITTED KITCHEN
  • GARDEN
  • CALL NOW TO VIEW

Description

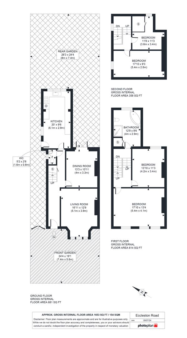
This four bedroom property is offered for sale in good condition throughout.

Accommodation comprises two reception rooms, fitted kitchen and WC on the ground floor, two double bedrooms and family bathroom on the first floor and a further double bedroom and a single bedroom on the second floor.

Located on Eccleston Road, the house is well-positioned between Uxbridge Road and West Ealing Station (Elizabeth and GWR Lines), with Waitrose practically on the doorstep. Ealing Broadway's town centre is also within easy reach, providing a wide selection of restaurants, bars, cafes, and additional transport links via the Central, District, Elizabeth and GWR lines.

The property is currently set up as a four room HMO but has the option to be a six room HMO with the relevant consent and also has the potential to be extended under permitted development and subject to the relevant planning consent.

Call now to view


Location


Floorplan

Floorplan

EPC

EPC for Eccleston Road, London

*This mortgage calculator is provided for general information purposes only. It's intended to provide you with an estimate of your potential mortgage payments and does not constitute an offer of finance or advice. The calculations are based on the information you provide and do not take into account your individual needs and circumstances.

The calculator does not include all the costs you will need to pay when taking out a mortgage. Your actual mortgage payments may be higher or lower than the estimates provided by this calculator. The interest rates used in the calculations are subject to change and may not reflect the actual rates available in the market.

Please note that the calculator does not consider changes in interest rates over time, early repayment charges, or any other fees and charges that may apply to your mortgage. You should always seek professional advice before making any financial decisions.

Remember, your home may be repossessed if you do not keep up repayments on your mortgage.

Calculate Your Stamp Duty
£
Results
Stamp Duty To Pay:
Effective Rate:
Tax Band % Taxable Sum Tax

£ 0
£ 0

Your estimated gross rental yield would be:

0.00%
Share this property