Default £499,950

Calculate your mortgage repayments

4 bedroom Semi-detached house for sale

Park Road, Farnham Royal

  • Semi-detached house
  • 4 bed
  • 2 bath
  • 2 reception

Key Features

  • EXTENDED SEMI DETACHED HOUSE
  • FOUR BEDROOMS
  • TWO RECEPTION ROOMS
  • NO UPPER CHAIN
  • TWO BATHROOMS
  • FRONT & REAR GARDENS

Description

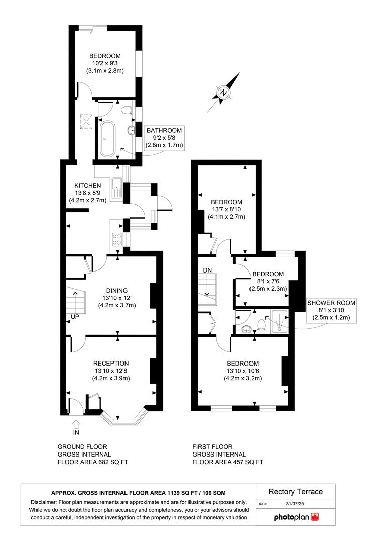
This extended four bedroom. two bathroom, two reception semi detached cottage comes to the market with no upper chain.

This property offers adaptable ground floor accommodation including a bay fronted living room, dining room, and a side aspect kitchen which gives you access to a lobby with a bathroom and a bedroom.

Upstairs is a twin front aspect master bedroom, a rear aspect second bedroom and bedroom three. Completing the accommodation is a shower room.

Externally, you have your own front and rear gardens. The rear garden is a good size and has a decking area with fencing to the sides.

LOCATION
Farnham Common village is approximately 1.5 miles from the property and provides a wide range of shopping facilities, including Tesco and Sainsburys mini supermarkets, Costa Coffee plus a variety of independent shops and restaurants.

Gerrards Cross Village and Mainline station with trains into Marylebone in approximately 22 minutes is approximately 5 miles from the property and offers a greater number of facilities.

Central London is easily accessible by road via the M40 (J1A) and M25 (J16) plus access to Heathrow and Gatwick Airports.

Buckinghamshire is renowned for its education system, with an excellent choice of independent Schools and Grammar Schools.

The area is well served for sporting facilities with The Buckinghamshire, Gerrards Cross and Denham Golf Courses within the area. Lawn tennis is available at Gerrards Cross and Beaconsfield.


Location


Floorplan

Floorplan

EPC

EPC for Park Road, Farnham Royal

*This mortgage calculator is provided for general information purposes only. It's intended to provide you with an estimate of your potential mortgage payments and does not constitute an offer of finance or advice. The calculations are based on the information you provide and do not take into account your individual needs and circumstances.

The calculator does not include all the costs you will need to pay when taking out a mortgage. Your actual mortgage payments may be higher or lower than the estimates provided by this calculator. The interest rates used in the calculations are subject to change and may not reflect the actual rates available in the market.

Please note that the calculator does not consider changes in interest rates over time, early repayment charges, or any other fees and charges that may apply to your mortgage. You should always seek professional advice before making any financial decisions.

Remember, your home may be repossessed if you do not keep up repayments on your mortgage.

Calculate Your Stamp Duty
£
Results
Stamp Duty To Pay:
Effective Rate:
Tax Band % Taxable Sum Tax

£ 0
£ 0

Your estimated gross rental yield would be:

0.00%
Share this property